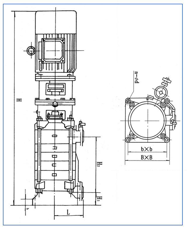
安装尺寸
                    
                            安装 
1. 安装前检?水泵和电机的完好惰况. 
2. 泵安装位置应尽可能靠近水源处
3. 泵与底座安装有两种方式,一种是直接装在水泥基础上的刚性连接,另一种是采用JGD型减振器安装的柔性连接,具体方法见安装示意图所示.
4. 直接安装可将泵安放在基础上垫高30-40毫米(准备充填水泥浆之用).然后进行校正,并穿好地脚螺栓,充填水泥砂浆,经3~5天水泥干涸后.重新校正,待水泥完全干涸后,拧紧地脚螺栓的螺母.
5. 安装管路?,?、出水管路都应有各自的支承,不应使泵的法兰承受过大的管路重量. 
6. 泵用于有吸程场合,进水管端应装有底闼.并且进出口管路不应有过多弯道.同时不得有漏水.漏气现象存在.
7. 在?口管路上最好装有过滤网,以防杂质进入叶轮内部.滤网的有效面积应是进水管面积的3~4倍,以保证液体的自由畅通
8. 为了维护和使用方便安全,在泵的进.出口管路上各安装一只调节阀及在泵出口附近安装一只压力表.以保证泵在额定范围内运行,确保泵的正常运行和使用寿命
9.?口如需扩径连接,请选用偏心异径管遒接头
  
 
| 
 编号   | 
 名称   | 
    | 
 编号   | 
 名称   | 
| 
 1   | 
 球阀   | 
    | 
 1   | 
 球阀   | 
| 
 2   | 
 挠性接头   | 
    | 
 2   | 
 挠性接头   | 
| 
 3   | 
 取压直管   | 
    | 
 3   | 
 取压直管   | 
| 
 4   | 
 真空压力表   | 
    | 
 4   | 
 闸阀   | 
| 
 5   | 
 闸阀   | 
    | 
 5   | 
 弯管   | 
| 
 6   | 
 弯管   | 
    | 
 6   | 
 泵   | 
| 
 7   | 
 压力表   | 
    | 
 7   | 
 联接板   | 
| 
 8   | 
 水泥台座   | 
    | 
 8   | 
 JGD型隔振器   | 
| 
    | 
    | 
    | 
 9   | 
 水泥台座  | 
DL系列立式多级离心泵安装尺寸图:
 DL系列立式多级离心泵安装尺寸表:
 DL系列立式多级离心泵法兰安装尺寸: